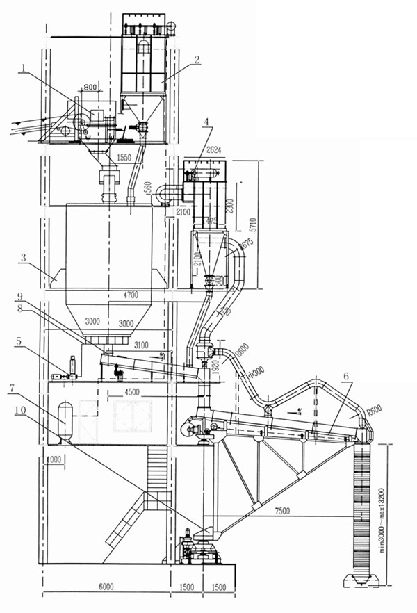
船舶散裝機(裝船機)
丁寶勤 13906276368(技術)
電話:0513-88400999 傳真:0513-88400998 郵箱:jszk@vip.163.com
本機具有料位控制靈敏、出料流暢阻力小等特點。該產品還可用于建材系統,其它行業以及冶金、煤炭化工部門粉粒物料裝車、裝船。
The system is conveyed powder material from side silo to bulk loading equipment.
It is characterized by nimble control, smooth discharge and small resistance etc.
Also apply in building material system, other industry, metallurgi?cal, coal and chemical industry to load and ship powder material.

9 CSZ-09卸料系統
Discharge system
8 CSZ-08羅茨風機至倉管路
Pipeline from roots fan to silo
7 CSZ-07壓縮空氣管路系統
Compressed air pipeline system
6 CSZ-06船用散裝機
Bulk loader of ship
5 CSZ-05羅茨風機
Roots fan
4 CSZ-04船用收塵器系統
Dust filtering system of ship
3 CSZ-03計量系統
Measuring system
2 CSZ-02庫頂收塵系統
Top silo dust filtering system
1 CSZ-01庫頂進料系統
Top silo inlet system













.jpg)


